多層タイプ スマートモデューロ・ムービングハウス 木香の家

商品タイプ

Type

多層タイプ

積み重ねて連結することで多層の建物として運用可能なスマートモデューロ。
広く開けたスペースも、沢山の小さなスペースも自由自在。
限られた敷地内に、より自由な計画を実現できます。
サイズ
幅19.2m×長さ12.0m×高さ5.78m
(2階:460.8㎡)
メーカー
希望価格
12m8連結2階建スケルトンタイプ
¥102,897,000‐(税別)
多層タイプ スマートモデューロ・ムービングハウス
スマートモデューロ 多層タイプ 平面図
多層タイプ スマートモデューロ・ムービングハウス
多層タイプ スマートモデューロ・ムービングハウス
多層タイプ スマートモデューロ・ムービングハウス

事務所棟

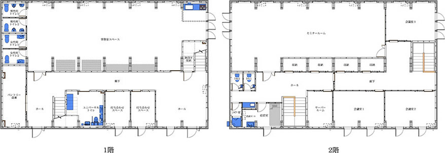
事務所棟 多層タイプ スマートモデューロ 平面図
事務所棟 多層タイプ スマートモデューロ
事務所棟 多層タイプ スマートモデューロ
事務所棟 多層タイプ スマートモデューロ

ホテル棟

ホテル棟 多層タイプ スマートモデューロ 平面図
ホテル棟 多層タイプ スマートモデューロ
ホテル棟 多層タイプ スマートモデューロ
ホテル棟 多層タイプ スマートモデューロ
ホテル棟 多層タイプ スマートモデューロ
ホテル棟 多層タイプ スマートモデューロ
©木香の家